logo
    Detalles de la propiedad
  • Tipo:

    Apartamento

  • Operación:

    Venta

  • Referencia:

    P001543

  • Condición:

    En Construcción

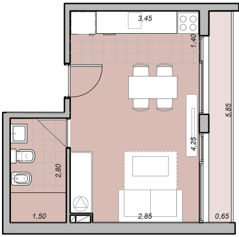
  • M² totales:

    37 m²

  • M² edificados:

    29 m²

  • M² terrazas:

    3 m²

  • Piso:

    7

  • Orientación:

    Este

  • Vivienda promovida:

Asesor responsable
Realizar una consulta
Algo ha salido mal, inténtalo de nuevo mas tarde.

Venta de monoambiente en Alzira, La Blanqueada

Monoambiente en venta en Alzira, ubicado en La Blanqueada - Luis Alberto de Herrera y Monte Caseros, con acceso sobre Luis Alberto de Herrera y un pasaje que vincula con el acceso a Echeandía, una calle tranquila de carácter residencial.

Rodeado por clubes deportivos, universidades, plazas y parques, hospitales y comercios. Un edificio de imagen moderna y dinámica. Proyectado en 3 bloques, conformado por 88 apartamentos  con terrazas, patios y áreas comunes para vivir y trabajar.

Funcional monoambiente al contrafrente, apaisado, muy luminoso. Buen metraje.
Cocina con placard sobre y bajo mesada. Previsión para lavarropas. Balcón.
Cortinas de enrollar. Placard con espejo que genera visualmente mucha amplitud. 

Además contará con amplias amenities: cowork, solárium, tender en azotea, gimnasio, zona de juegos infantiles y salón de usos múltiples. Y servicios de primera categoría a fin de brindar a los usuarios seguridad y confort: seguridad 24hs con sistema video/ monitoreo, apertura de puertas principales con tag, huella o código, cerraduras inteligentes y wifi en áreas comunes.

Amparado en la Ley de Vivienda Promovida.
A Estrenar en Noviembre 2025.

El precio no incluye los gastos de ocupación del 4% ni los honorarios inmobiliarios del 3% + IVA.

¡Consultanos!

Amenities del Edificio

Áreas verdes

Ascensor

Cowork

Parrillero (común)

Salón de usos múltiples

Seguridad

Características

Balcón

Cocina

Comedor

Living

Ubicación