logo
    Detalles de la propiedad
  • Tipo:

    Apartamento

  • Operación:

    Venta

  • Referencia:

    P001279

  • Condición:

    En Construcción

  • M² totales:

    37 m²

  • M² edificados:

    28 m²

  • Piso:

    2

  • Orientación:

    Sur

  • Fecha estimada:

    Noviembre 2025

Asesor responsable
Realizar una consulta
Algo ha salido mal, inténtalo de nuevo mas tarde.

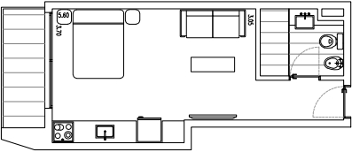
Venta de monoambiente en YES! Plaza Varela

Monoambiente en venta en YES! Plaza Varela.

Ubicado en Pocitos a pasos de la Plaza Varela - Canelones entre Bv Artigas y Av. Brasil. Un punto espectacular.

2do piso al contrafrente, monoambiente funcional con terraza.

A estrenar en Noviembre 2025.

El edificio contará con 2 barbacoas, una con patio y otra en el último piso con inmejorables vistas; solárium; lavadero y gimnasio.

Los precios no incluyen gastos de ocupación del 5% ni honorarios inmobiliarios del 3% +IVA.
*precio con forma de pago contado

¡Consultanos!

Amenities del Edificio

Área de lavandería

Ascensor

Salón de usos múltiples

Características

Terraza

Ubicación